点击观看
设计师现场讲解
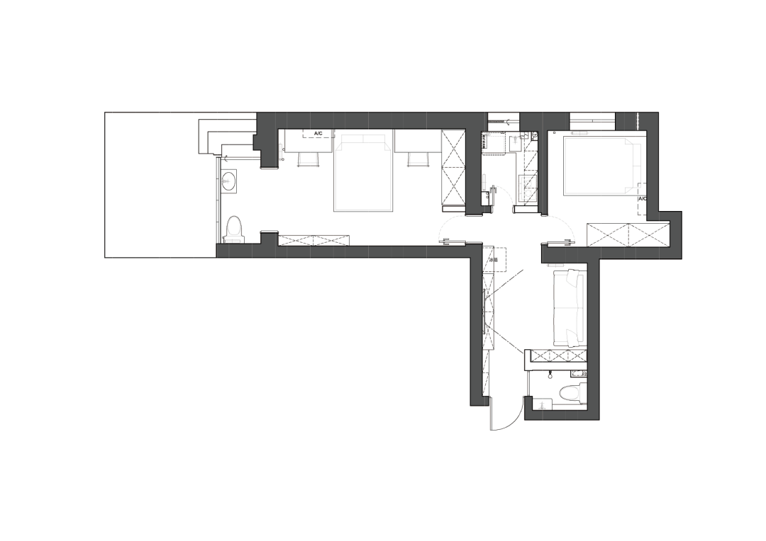
← 左右滑动 →
查看户型改造前后变化
△ 窗外景色
这处胡同里的学区房,面积40㎡,“高龄40岁”。典型的“手枪户形”,空间窄长。因入户门挨着卫生间,一进屋昏暗、潮湿扑面而来,令人不自觉的心情低落。想安置好三代五口人的生活,要从新布局。老房几乎全是承重墙,管道也难调整...无法大拆大改,是挑战!我们却有些激动期待:它很有想象空间。窗外,青砖灰瓦高树枝。
只待改造干净整洁,这段求学时光将是柔情、美好、带着胡同闲恬底蕴的。
→ 滑动 看看房屋改造前
△ 一面柜门设计为穿衣镜,延伸视觉
采取了高效,并适合孩子跑动的战略:留一条主通道,功能集中在一侧。原先暗卫处,改做三面顶天立地的储物柜。如今推开门,软膜天花灯柔和光线下,白色明亮、木色亲和,便捷又舒心。
△ 利用转角空间嵌入白色冰箱,作为厨房起点。
我们坚持把厨房换至中间,获得了较宽裕的操作区。上下柜子是U形布局,收纳量可观。并得以放下水处理设备和一个小洗碗机。有智能产品减轻家务量,生活品质不打折扣,小家的一餐一饭常伴幸福。
△ 节省空间又美观的做法:用板材代替隔断墙,嵌入洗手台。
卫生间‘顺利’变身带窗户的明卫。门选择了长虹玻璃搭配金色边框,透光不透人,显通透精致。考虑三代同堂,易出现同时使用‘高峰期’,外置了洗漱台。
△“便捷顺利”的背后:为改善老屋排污排水,做了沉淀井方案。
北面的房间,平时长辈居住。同时它也是小朋友下学后读书、写作业的房间。木色书桌前,借着建筑的内凹空间做了白色隐形收纳,不必担心学习用品增多无处摆放。
走廊中间的“睡眠舱”,选了一张2米×2米的大双人床。拉好银灰色布帘,整个睡眠区被包裹起来,静谧又柔软。小朋友很喜爱这个有趣又安全的小巢。
△ 墙面用波浪板,增添层次。
此时,家庭互动空间挨着阳光披身的小阳台,活动场地变大了许多。简单的卡座与一张长桌,作为核心。除了用餐,四位家长会轮流带着小朋友在这里读绘本、做手工、聊天。
想淋漓尽致的发挥出光的美,整个房子用色很克制,白色和木色清新松弛。阳台更换了系统窗,通向小院的门也改为玻璃材质。搭配百叶帘,光灵动梦幻,没有任何灼热感。
五口之家的洗衣是个大工程,取齐墙面,阳台安置了小水盆、干衣机、洗衣机。有灵活的折叠衣架,天气好时,衣物可以拿去院子晾晒。
父母爱子,则为之计深远。
愿孩子长大,想起这间‘求学房’:睡眠舱是造梦小船,书柜是百宝箱,客厅是阳光乐园。胡同的四季景色,一家五口的欢声笑语,在回忆里闪闪发光。
项目类型 | 全案设计 / 施工 / 全托管
设计年份 | 2022年08月
交付年份 | 2023年06月
建筑面积 | 50㎡
主创设计 | 贾莹莹
落地团队 | 张惠瑜、石龙武
客服—立夏
视频号
更多精彩请关注
↓
📞 400 819 8119
📬 lee@essei.cn
📍 北京市朝阳区家具一条街198-4号























