家
随着时代的改变,人们对装修设计的想法也在不断变化。历尽数年漫长岁月,或许褪去华丽的外表、仍让我们感到怦然心动的居所,才是理想中的温暖家。而好的设计,往往能切实解决旧房的居住难题,让人们真正感受到家的“温度”。
Project
项目地址:杭州西子花园
项目面积:96㎡
Introduction
设计机构:松下住空间
项目类型:住宅
这套坐落于杭州的96㎡住宅,始建于90年代,经历了近30年的斑驳岁月。它承载着业主儿时无数的美好记忆,因此在空置10余年后,业主仍决定将其翻新改造,用于和太太的日常居住,续写人生故事的新篇章。
BEFORE
AFTER
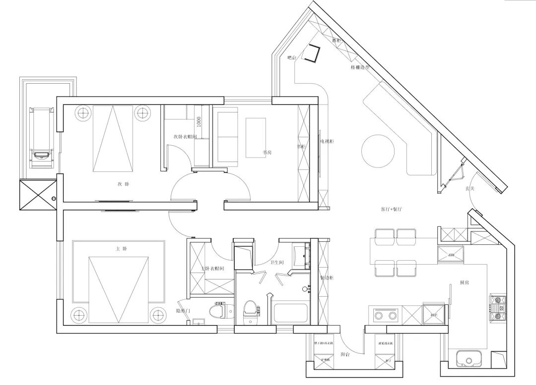
业主喜欢简约轻奢的装修风格,并希望融入智能设计以及日式住宅的巧思。根据客户意见,松下住空间团队将旧房重新规划为3室2厅2卫,强化收纳性与实用性,同时增设新风系统、净水系统、适景光照明系统、厨电收纳等各式松下产品,优化家中的空气、水、光。房屋的每一处细节,都体现了对居住者的尊重,勾勒出理想居家生活的模样。
1
玄 关
BEFORE
AFTER
改造前:
旧房没有明显的玄关,进门就能看见客厅,私密性较差。
改造后:
设计师在原户型基础上增加了玄关区域,利用松下壁橱折门打造专用玄关收纳间,入户视线得到缓冲,保护私密性的同时也提供了更多储物空间。
壁橱折门对面的玄关下柜底部镂空,用于放置应季的鞋子和拖鞋,进出随手就能拿到。业主夫妇四季的鞋子加起来不少,所以设计师特地在玄关下柜内部安装了松下旋转鞋架,能够双面旋转,容量充足,存取也十分便捷。
中间镂空部分可以放置钥匙、包包、绿植等物件,上柜设计了活动层板,收纳储物更灵活。
上柜底部的底板灯设计,巧妙增强照明亮度和视线清晰度,无论下班回家还是客人来访,一入户就能感受到温馨柔和的居家氛围。
2
客 厅
BEFORE
AFTER
改造前:
改造前的客厅是一个不规则空间,外形构造存在缺陷,业主认为不够美观。
改造后:
设计师利用新增玄关对其进行矫正,使客厅区域在视觉上更加方正,不显突兀,有效建立了空间秩序感。
劳累了一天,工作回到家,两人也渴望有一个尽情放松的空间。于是设计师将电视柜、窗边吧台、餐边柜相连,做了一个融合设计,闲暇时可在此区域休憩冥想,与亲朋好友闲话小酌,将窗外美景尽收眼底。
3
餐 厅
BEFORE
AFTER
改造前:
原厨房结构封闭,采光不足,流通性和互动性差。
改造后:
改造后的厨房被设计为中厨和西厨。西厨为开放式布局,餐桌与橱柜相连,延伸至厨房内部,不仅采光有所改善,还增强了整个空间的流动性与互动性。
橱柜厨电一体化嵌入式设计,不占空间,收纳更有条理。
电磁炉用于简单烹饪,上方灯带增强光线,便于日常下厨。
左右滑动查看更多
顶部橱柜内置松下升降拉篮,能随意降至触手可及的高度,存取物品省心省力。下厨的人可以在此一边做些低油烟的冷餐或蒸烤类美食,一边与家人沟通,增进感情,共享烹饪带来的喜悦与满足感。
中厨按照洗、切、烧、取、盛的流程布局,动线简洁清晰,减少了徒劳走动;大单槽、下拉调味柜等配套松下厨房产品,增强了便利性,有效提高烹饪清洁的效率。
左右滑动查看更多
相比西厨,中厨有重油烟的特性,专用厨房空调能让烹饪爆炒更舒适,玻璃移门可以隔绝油烟污染,保持用餐区域的干净整洁。
左右滑动查看更多
4
卧 室
BEFORE
AFTER
改造前:
原次卧和主卧布局规划不够合理,没有足够的收纳空间。
改造后:
为了使卧室有充足的储物空间,我们改变了原本的格局,额外规划出了一个衣帽间,内部搭配松下I-Shelf,通过随心搭配各类零部件,划分为长衣区、短衣区、叠放区,使收纳更整齐。
阳台区域与卧室打通,增强视觉延伸感。考虑到业主有健身的爱好,后期在阳台放置一些家用运动器材,还可将其作为健身场地使用。
原主卧的大卫生间被一分为二。这样既拥有了独立衣帽间,方便日常储物收纳,又保留了原有卫生间的功能,实用性更强。
左右滑动查看更多
5
卫浴间
BEFORE
AFTER
改造前:
原公用卫生间没有分区,家里如果来了家人朋友,就会出现“卫生间不够用”的情况,很耽误时间。
改造后:
改造后的公用卫生间采用日式住宅中常见的三分离设计,洗漱、如厕、沐浴区域各自独立,可同时使用,且互不干扰,让原本狭小的卫浴空间得到了充分利用。
6
书房
BEFORE
AFTER
改造前:
原书房功能单一,业主希望能增强它的实用性,实现“一屋多用”的效果。
改造后:
改造后的房间可以满足娱乐、看书、办公等需求。如果有客人来访,再摆上一张可折叠的沙发床,又可作为临时客房使用。
健康的生活状态离不开家中优越的空气、水、光。设计师在全屋范围安装了松下空调以及新风系统,将室内温度、风量等功效优化恒定,“智”造健康的气候生态。
左右滑动查看更多
此外,还有由前置过滤器、中央净水机、中央软水机、末端净水器构成的全屋净水解决方案,以此改善家庭水质环境,让日常“饮、洗、用”更健康。
全屋大部分都采用了无主灯的设计,让轻奢的居住环境更具有氛围感。松下适景光照明系统可针对不同生活情景和个人需求,一键切换光照模式,匹配最适宜的照明方案,营造最佳的环境光。
对业主而言,能够和家人重回载满儿时记忆的故居,既新鲜又熟悉,而由松下住空间一手打造的家装设计,看似质朴简洁,却处处凝聚着设计师们的匠心,也让他对未来的居家生活充满了期待。装修已经落幕,但属于家的故事仍在继续……
点击视频
了解更多装修细节!























