Preface
在全球精品咖啡的发展历程中,第三次咖啡浪潮重新定义了咖啡与城市生活的关系。来自京都的精品咖啡品牌 Kurasu正是在这一文化语境中诞生。从深圳湾万象城二期全中国首店开始,到北京三里屯太古里慢闪店,设计团队思考如何塑造品牌在一南一北高奢商圈的咖啡文化叙事。
项目由了建筑主持设计;跨文化的设计背景,使设计团队在城市、建筑与室内之间建立起更加连续的策略方法。以品牌内核为线索,思考一个海外品牌入驻国内时其自身所带有的“双重性”,并以融入国内的消费场景与年轻人的生活方式作为锚点,结合两座城市商圈的性格特征,将咖啡手冲文化与社群联结转化为可被体验的城市空间。
深圳店以内外“双檐”回应东亚传统坡屋顶建筑,北京店则以左右“双盏”将咖啡滤杯的形制融换为可被体验的空间语言,在平衡品牌辨识度的同时尊重在地语境,让咖啡文化的匠人精神、社群温度,与中国都市的生活本貌、场地特质自然相融。
深圳湾万象城店
双檐之下的城市会客厅
Kurasu中国首店落地于深圳湾万象城二期。依托深圳湾商圈城市绿谷的规划概念与高端社区的客群基础,设计的核心愿景便是打造一处社区咖啡文化会客厅,策略上提出“内外双檐”概念,形成对町屋与渔村坡屋顶建筑的跨地域提炼与并置。
“外檐”为哑光金属波纹板斜屋顶,接续商圈幕墙外立面语言的同时,兼具遮阳功能。它对外作为环境光影的幕布,对内则压低视觉感知,加强对“慢空间”氛围的渲染。“内檐”为微微打开的轻透界面,暗示咖啡吧台如随时可进行手冲表演的舞台。二者共同形成屋中屋的空间层级。
Kurasu中国首店落地深圳,内外双檐,形成对町屋与渔村坡屋顶建筑的跨地域提炼与并置。© 金伟琦
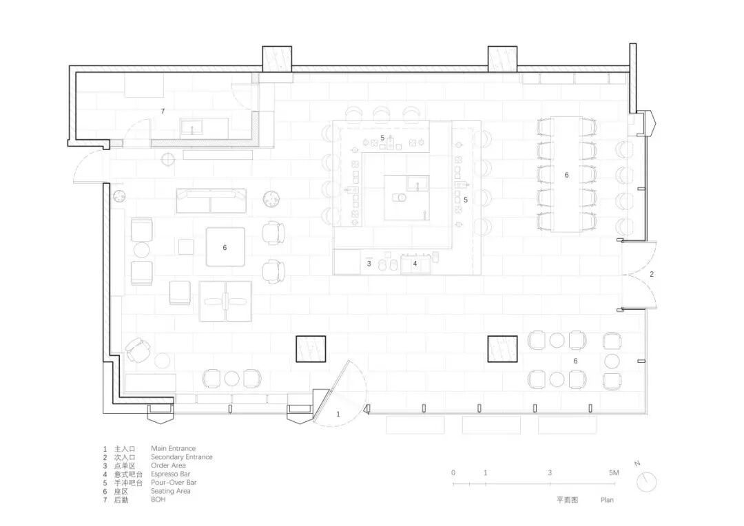
平面布局遵循动静分区的原则,通过次入口实现静态休憩区与动态体验区的流线划分,融合咖啡、烘焙、零售展示的复合功能,让空间成为可承载多元生活场景的社区会客厅。设计既考虑商业效率,也保留了慢停留的可能性。
动静分区,融合咖啡、烘焙、零售展示的复合功能。© 金伟琦
5.8米的板底高度,为设计提供了充足的表达维度。首层的主入口、意式吧台、手冲吧台构成动态体验区,构建出点单、冲煮、取餐的客流动线。在与业主充分沟通后,设计团队打破惯常咖啡空间的一字型吧台布局,以回字形吧台作为体验中心,手冲仪式、器具与香气在吧台弥散,形成交互性的视觉体验。
设计团队打破传统咖啡空间的一字型吧台布局,以回字形吧台作为体验中心。© 金伟琦
室内外冷暖对话的材料体系,源自于在阴翳下慢啜的意象。外檐采取哑光金属波纹板,内部则使用木饰面、手工砖、莱姆石与杜邦纸,让室内界面拥有丰富的触觉与视觉层次。家具色系选用焦糖色、木色与黑色皮革,延续土壤与咖啡豆场景想象。编织、大漆、插花等日式器皿的点缀,让贴身的尺度下可近观可轻触,让场域如家中客厅一般温润松弛。
室内外不同材质形成冷暖对话。© 金伟琦
外檐压低的高度与角度,与场地旁的乌桕树、紫花风铃木一同协调身体感知与外延的空间尺度,打造出室内外渗透的感官体验。可短暂驻足的室外座区,与周边的“溪水”、行道树、等界面相互交织,意在构建起人们在屋檐下闲坐品咖、静赏街巷林樾的社区氛围。
建筑与周边的关系 © 了建筑
构建在屋檐下闲坐品咖、静赏街巷林樾的社区氛围。© 樊钊明
设计模型:内外双檐 © 了建筑
设计图纸 © 了建筑(左右滑动查看更多)
北京三里屯太古里慢闪店
多元体验的空间滤杯
北京三里屯太古里慢闪店为一处长8米、宽3.5米、限高3.5米的极小尺度慢闪空间。延续“双”(dual)的理念,以Kurasu经典手冲滤杯为母题,结合轻薄的纸折艺术形态,以一大一小“双盏”开启新一轮的空间叙事。
“大杯”以覆扣的姿态实现内向围合,构建出咖啡冲煮与体验的核心空间;“小杯”以斜挑的形态形成外向开敞的展示界面,成为品牌与城市互动的窗口。
北京三里屯太古里慢闪店,以一大一小“双盏”开启新一轮的空间叙事。© 金伟琦
场地尺度的限制要求实现空间利用的最大化。大杯的平面布局紧凑高效,中间的线性吧台清晰划分操作区与顾客区。再以覆扣大杯为形,借围合界面,消解了街头喧嚣。
更见细节与巧思的是,墙面在操作区一侧微妙地倾斜较缓,以最大化咖啡师的活动空间;而在顾客区,弧墙倾斜角度加大,强化空间的身体感知。让方寸之间拥有如居酒屋般的沉浸式体验。
“大杯”以覆扣的姿态实现内向围合,构建出咖啡冲煮与体验的核心空间。© 金伟琦
而悬挑的小杯则成为空间的视觉焦点,既实现了品牌的户外展示,又为行人提供了停留小憩的场所,让慢闪空间成为三里屯街头的城市微展厅。
上沿可开启的玻璃屋面,既应对了极端天气下可能出现的风荷载过大的不利因素,同时兼顾季节更替带来的内部体验。人们品尝手中咖啡之余,不忘抬头望向城市的天空与枝叶的四季变化。
悬挑的小杯则成为空间的视觉焦点。© 金伟琦
了建筑设计团队尊重Kurasu的品牌调性,让结构与材质成为文化对话的载体。以质感对比与光影营造为手段,延续深圳首店的外冷内暖的熟悉感。同时采用磨砂不锈钢板、木纹铝板与米色质感漆,呼应品牌器物与京都的礼制感,兼顾慢闪空间的耐候性与施工便捷性。
钢结构底座将两个杯体钢结构锚固于地面,悄然承担配重之责,同时又在角落处微微翘起,以回应纸折艺术的轻盈。深色的小砾石结合天然石板与石块,既满足通行与闲坐,也整体围合出庭院景观。
材质对比与光影营造。© 金伟琦
北京店通过形态边缘的转折与弯卷,让室内光线形成柔和的漫反射,冬日雪景下,磨砂不锈钢外立面作为街景灯光的流动载体。从玻璃内透出的光如一抹暖意,让有限的室内空间拥有独特的季节温度。
北京店通过形态边缘的转折与弯卷,让室内光线形成柔和的漫反射。© 金伟琦
咖啡店成为冬日雪景下的温暖存在。© 小白
设计概念模型:一大一小“双盏” 滤杯 © 了建筑
设计图纸 © 了建筑(左右滑动查看更多)
从海外到深圳,再到北京,了建筑的设计实践并非简单的品牌复制,而是一种持续展开的文化表达。它们指向同一个问题:在高度商业化的城市环境中,如何为一种更慢、更专注的生活方式留存空间。
设计以建筑语汇重塑咖啡空间的形态与体验,消解商业与生活的边界,让京都手冲文化在当代都市中生长出在地化的场所,打造出兼具空间美学与生活温度的城市咖啡会客厅。
在这里,城市的节奏被放慢。让咖啡回归生活的日常,恰如Kurasu的文字本意——“生活方式”。
Kurasu咖啡·深圳湾万象城店 © 金伟琦
Kurasu咖啡·北京三里屯太古里慢闪店 © 金伟琦
项目信息
项目名称:Kurasu深圳湾万象城店
项目业主:Kurasu
项目类型:咖啡厅
启动时间:2025年6月
完成时间:2025年10月
建筑面积:184㎡
项目地址:深圳市南山区深圳湾万象城2期C区
设计范围:建筑设计、室内设计
设计单位:了建筑
设计主创:李大可、雷楠
设计团队:庄龙威、罗文枫、伍兆弘、张抒平(模型制作)、李长欣(图纸表现)
设计驻场:伍兆弘
室内装修施工单位:广州璟之晟装饰工程有限公司
外立面施工单位:北京亿达和信装饰工程有限公司
幕墙顾问:郑友钊(广州凝龙工程技术咨询有限公司)
灯光设计顾问及制作单位:广东伽玛照明科技有限公司
软装顾问:舍下草堂
项目摄影:金伟琦、樊钊明
项目名称:Kurasu北京三里屯太古里慢闪店
项目业主:Kurasu
项目类型:咖啡厅
启动时间:2025年9月
完成时间:2025年12月
建筑面积:28㎡
项目地址:北京市朝阳区三里屯路11路院N2楼东侧太古里北区
设计范围:建筑设计、室内设计、景观设计
设计单位:了建筑
设计主创:李大可、雷楠
设计团队:庄龙威、罗文枫、伍兆弘、李长欣(图纸表现)
设计驻场:张益修(蔚象建筑)
施工单位:北京亿达和信装饰工程有限公司
项目摄影:金伟琦、小白
了(liao)解,是一切的开始。概念具象化且被营造后,新的生命又开始了(le)。
了建筑(广州了间建筑设计有限公司)是由李大可和雷楠2019年在美国纽约成立,2020年正式回国于广州正式全方面开始实践。事务所项目类型涵盖建筑、室内、景观、艺术装置、家具等不同类型与尺度。不桎梏于形式,更趋向以随势设计为出发点,遵从方案到施工全方位深度介入与参与的工作方法。
合伙人李大可毕业于纽约哥伦比亚大学,访学于伦敦AA建筑联盟。曾实践于纽约Rafael Vinoly Architects。合伙人雷楠毕业于北京清华大学,并在纽约库珀联盟学院深造,曾实践于坂茂建筑事务所(Shigeru Ban Architects) 。
采访丨Miki
撰稿 | Lily Ye
编辑丨Daisy
- 更多精彩内容 -
福布斯 2026 五星榜单,最新上榜的 7 家中国酒店
2026秋冬时装秀:如何在实体秀场与线上流量场中突围
8㎡ 的空间能做什么?开一间咖啡店呀!























