Preface
武林之星博览中心的前身是杭州制氧机厂的旧址。2009年,公司迁至临安新址,老厂的生产设备拆除,厂房空置,以待更新。2022年,青年建筑师栗若昕参与设计,他放入新设备,让工厂满足新功能,再次“运转”起来。
*
武林之星博览中心
这是栗若昕决定独立执业之后的第一个建成项目,他发现建筑是所有人的事情,设计只是起点。过程中,他遇到了要求百分之百还原设计效果的甲方,每周至少来两次现场的项目负责人和将设备看作艺术品的厂家。在采访结束前,栗若昕问,能不能把参与项目的所有人的名字都写进团队名单里,就像电影的演职人员表一样。
*
杭州制氧机厂改造之后成为武林之星博览中心
杭州市北有三处规模较大的工业遗产,分别是杭州制氧机厂、杭州锅炉厂和杭州钢铁厂。在2010年前后,三处工业遗产先后启动搬迁、腾退、更新。杭钢旧址如今是大运河杭钢公园,改造方案来自刘家琨建筑事务所。当地政府曾计划将杭氧连同旁边的杭州锅炉厂旧址作为组团,打造成“杭州城市之星国际文化旅游综合体”。这是2014年浙江省重点建设项目,来自美国的Steven Holl Architects(SHA)、瑞士的Herzog & de Meuron(HdM)和英国的David Chipperfield(DCA)参与规划设计。HdM负责杭氧的整体改造。他们做了严谨、扎实的遗产修复工作,如今老厂房的外墙就是他们的成果。后来,“国际文旅综合体”无疾而终,HdM团队在2021年年底退出。
*
生产设备拆除后的杭州制氧机厂空置厂房
栗若昕在2020年末加入运营团队,负责与设计团队对接。他本人是建筑师,本科就读于中央美术学院建筑系,后去瑞士门德里西奥建筑学院深造,曾在瑞士Leismann AG和中国迹·建筑事务所(TAO)工作。栗若昕本想尝试设计以外的可能,谁知道遇到杭氧,一时手痒,干脆自己把园区所有厂房全部设计一遍。
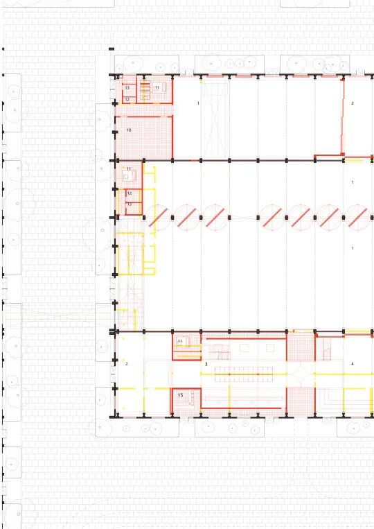
栗若昕已经在运营团队里与业主沟通了一年,十分清楚设计的约束条件和使用需求。工厂的新定位是“博览集群及商业配套”,为了提高空间的使用效率,需要重新划分室内,但是不能加建二层;其次,不能改变现有的防火分区;第三,在不改变建筑外观的前提下遮挡自然光,满足展览展示的环境要求;第四,则是未来使用的不确定性。
*
改造后的武林之星博览中心三号中庭空间
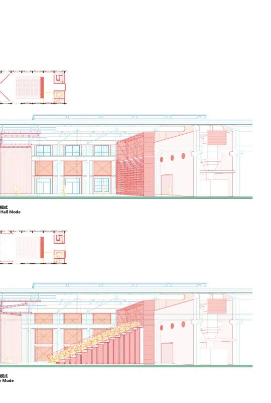
“起始概念是我有一次去杭州出差,在机场看见了飞机的机库门,像是一面巨大的墙在移动。我想那么大的门都能动,在工厂里安装像门一样的巨型隔断应该也可以。”栗若昕说。一扇扇可以移动的墙,灵活地分隔空间——设计最核心的想法在他的脑海里诞生,贯穿方案始终。通过旋转门和平移门,面积最大的三号厂房最多可以隔出四间大小不一的展厅,根据需求灵活租赁,自由分隔。四号厂房放入伸缩观众席和折叠LED屏,功能在剧场和展厅之间切换。窗前安装可以上下滑动的遮光板,控制进光量。
* 向上滑动查看更多
以各类机械单元为要素,整体建筑能像公式运算一样,生成一套多样化的内部空间动态谱系
* 向左滑动查看更多
生活中所接触到不同类型和尺度的门板
可操作的机械装置不仅成为解决问题的策略,还直接表达出设计理念。工厂的生产功能由内部的设备定义,作为建筑的厂房只是外壳和设备附着的框架,厂房默然矗立,机械运转轰鸣。栗若昕的方案延续了这一逻辑,通过放进新的机械,定义新的功能。工厂从物质生产变成文化艺术活动的发生场所。使用者根据自己的需求操作机械,改变空间形态,所有新增的机械和管线连同原始结构全部暴露在外,观众能够看到整个系统如何运作。如果工厂未来有新的使命,其内部的机械设备可以随时升级或者淘汰,厂房则最大限度地维持原状。这也是栗若昕的初衷:建筑的功能随着时代发展不断变换,其最初的场所精神始终存在。
* 向左滑动查看更多
*
四号厂房观众席收缩状态和展开的观众席和折叠LED屏
2022年年末,甲方启动项目设计公开招标工作,园区共有七座老厂房,栗若昕参与三号、四号、五号的室内改造提升。他记得那次坐飞机去杭州时,机场不再查验核酸检测报告了。栗若昕以独立建筑师身份,与浙江经纬工程设计有限公司合作投标,并成功中标。
做初步设计的时候,栗若昕再次来到厂房,他突然发现测绘图纸上看起来一模一样的柱子,细看之下竟然都不一样了。牛腿柱侧翼的高度、形状、位置,以及柱子之间的间距都有差别。他开始重新阅读厂房,重新审视项目的方案。
* 向左滑动查看更多
不同的排架柱类型、结构体系,与工厂内机械设备的连接关系
老厂房始建于1959年,当年国内的工厂普遍采用苏联的工业建筑设计体系,引入预制和装配技术,统一空间模数和构件尺寸。然而根据实际生产情况,工厂的结构和梁柱的形态有很多适应性的变化。栗若昕在资料中发现了三十种不同的排架柱做法,其中十五种都能在杭氧的老工厂内找到。
“最开始做概念设计的时候有点儿没敬畏心,觉得厂房是就常规排架结构,柱子的制式都一样,其实还是把厂房当成了一张白纸。深化的时候发现很多细节都不一样。比如老的行车梁与窗户之间的距离有大有小,会影响遮光板的设计,所以三号厂房北边的遮光板是上小下大的阶梯形轨道,四号厂房的是凸字形的轨道。每一段柱子和梁也不一样,旋转门不能简单地复制。所以,首先要理解差异,才能设计出适应这些差异的标准构件。”
*
三号厂房遮光板打开与关闭下对室内光线影响的不同状态
这是方案与现实相互碰撞的时刻。新旧之间不是极致的对比,而是精密地嵌入,咬合在一起。到了这一步,方案才真正与老厂房发生关系。栗若昕拆除了工厂几年前临时增加的轻质隔墙,恢复其原始的空间状态,仅在角落增加机房、卫生间、接待区等必要的配套功能。除此之外,他没有插入任何新的体量,改造介入的深度到此为止,最大程度保留厂房原有的空间形态和氛围,那是他第一次来到这里时感受到的震撼——巨大的内部空间、整齐的结构序列、清晰的建造逻辑让工厂有了非刻意为之的纪念性。
* 向左滑动查看更多
新旧之间不是极致的对比,而是精密地嵌入,咬合在一起
* 向左滑动查看更多
三号厂房和四号厂房不同的遮光板设计逻辑
2023年七月,初步设计完成,项目进入招投标阶段。栗若昕即将迎来并肩作战的团队。他说:“刚开始学建筑的时候,觉得建筑只是建筑师个人的宏大叙事,后来才发现,建筑师只是过程中的很小一部分。”
2024年一月,浙江省城乡规划设计研究院与浙江众安建设集团联合体中标该项目施工图设计及施工,项目负责人是李锦霞,栗若昕继续进行落地跟进。
“我当时接到的命令是把方案严格落地,百分百还原效果图。”李锦霞对这个项目的印象就是工期紧,要求高。设计院要在合同规定的时间内完成建筑、结构、消防、给排水、暖通、电气、智能化在内的九套施工图、上传、并通过图审,否则可能面临审计部门的审查,甚至罚款。项目要求三月底完成图审,2024年年底竣工。
最难的是结构设计。杭氧旧址在2011年被列入杭州市第六批历史保护建筑,新增的部分必须与原有结构完全脱开,并且能够全部拆除。此外,结构方案需要通过厂房的原施工图单位——中国联合工程有限公司的复核,否则无法通过图审。难点就在这十几扇旋转门上,旋转门约五米宽、九米高,一扇至少两吨重,除了垂直的重力,还有侧向的倾覆力。为了保证稳定性,设计院最初的方案是现有排架柱内侧加上约三十公分宽的桁架柱,效果更像一个硕大的内门框。想要实现轻盈精致的效果,需要向原结构借一点力。但是中联合要求严格,连一颗螺栓都不允许打在原结构上。
*
三号厂房的巨型旋转隔断
在项目推进困难之际,主动站出来的是浙江佳合科技股份有限公司。佳合是旋转门、遮阳板、伸缩观众席等设备的生产厂家。他们早在2023年初就接触过这个项目,业主曾希望他们提交商业化改造方案,而当佳合再次参与的时候,设计方案已经确定,项目进入招投标阶段。在2024年年初,佳合拿到设计图,这是他们第一次与建筑师合作。项目负责人张钦松说:“这些设备没有可以借鉴的例子,只能靠建筑师的判断。栗工要告诉我们他想要的动态效果。我们一共打样了三次,每次打样,栗工都会参加,来现场一起讨论。”
门窗用的是波纹铝板,市场上现成的波纹铝板有几十种,但是都无法满足栗若昕的要求,为了保证效果,佳合找厂家定制了一个波段。最初门框用的是方管,显得笨重,后来改用槽钢,把波纹板嵌进去。佳合对产品有自己的要求,第二次打样完成后,旋转门的电机裸露在外,他们觉得不好看,换成西门子的小电机,可以藏在门框的内侧。
*
门窗所使用的波纹铝板材料
佳合的主营业务是定制舞台设备,曾经参与过北京奥运会开闭幕式。对于他们来说,机械设备本身并不算难点,真正的挑战是如何安装到老厂房上。他们主动提出在现场进行第三次打样,“我们之前是用自己厂房的柱子作为连接体,有些连接的细节和杭氧不一样。”
栗若昕、佳合与设计院共同推进新设备的结构设计。旋转门的中轴承担所有的重量,支在独立浇筑的沉降基础台上。根据重新测量的结果,杭氧的柱子有些倾斜,所以在旋转门外增加上了门框,通过门框与柱子之间的垫片消化这些微差。最后,需要确保环形轨道自身,以及门在旋转过程中的稳定性,如果完全与原结构脱开,根据设计院的计算结果,至少需要增加两根立柱。
* 向左滑动查看更多
*
辅助巨型旋转门使用的环形轨道与确保结构稳定性所增加的立柱
大家对于效果很坚持,觉得加上这两根柱子,旋转门的体量会变得过于强势,看不出老厂房的原貌,不符合设计的初衷。于是佳合的创始人、总工程师倪乐村带着张钦松来到中联合,找到了老厂房的项目负责人,就在办公楼一层的咖啡厅里聊起杭氧。张钦松说:“我们的总工程师原来是杭州发动机厂的工人,对老厂房有很强的怀念之情。他发现我们在做这个项目的时候很感慨,讲了很多当年的故事。我们也觉得杭氧的老厂房保存得比较完整,如果改得不像厂房,那就太可惜了。所以我们要参与进来,把它做好,让大家感受到最初的氛围。”
改完依然像老厂房——设计概念再一次得到验证。
年逾八十的老工程师不仅打动了自己的团队,也说服了中联合。中联合不仅允许在原有结构上打化学螺栓,还主动介绍老工厂的结构细节,提出其他建议。2024年3月30号,李锦霞拿到复核表,项目通过图审,正式进入施工过程。栗若昕也在工地附近租了间房子,开始为期九个月的驻场。
*
基于厂房内原始结构的延续
刚开工,栗若昕和李锦霞就遇到了新问题——管线排布。
“工人做完基础的拆除工作后,首先开始安装水管电线。这个项目的特点是所有的构件都暴露在外。桥架怎么排,风管怎么布,都是空间里的装饰要素。栗工在做第一轮方案的时候,图上没有体现水暖电。施工单位说先按照他们自己的做法在现场打个样。现场一看,太丑了。我才意识到这部分设计我们还要做。”李锦霞说。
* 向左滑动查看更多
空调管道巧妙地藏匿于桥式吊车之间,同时半透明金属网沿着吊车边界将这个出风口系统裹,原始厂房的设备如橱窗中文物一样有趣的展示在空间中
这是李锦霞和栗若昕的第一次深入合作。栗若昕建模,出设计方案,设计院深化图纸。遇到具体问题时,栗若昕走进设计院的办公室,直接坐到给排水、电气等各专业的工程师身边,面对面沟通。双方推敲好之后,先在三号工厂先做一跨测试效果,然后让施工队照此排布。
施工现场分为不同的工作组:拆除班组、挖土及与渣土外运、水电安装、消防、混凝土钢筋绑扎与砌墙、钢结构、佳合大型设备班组、木工、防火门、暖通、玻璃、电动开窗器、智能化、油漆涂料、地面面层、卫生间隔断、以及最后收尾的保洁班组。前前后后一共有150位工人参与项目。
*
施工中的武林之星博览中心
李锦霞的办公室离施工现场约二十分钟车程,她每周都会来三次左右。每当遇到会影响效果的施工动作,她就会叫栗若昕来现场讨论。这也是栗若昕选择驻场的原因。“我当时不是每天都有事儿,就是要保持可以立刻控场的状态。如果他们突然要打样了,或者有东西装不进去,我不可能随时从北京飞过来。比如监控系统的红外装置、消防指示牌、灯具……要盯着他们不能在柱子上面乱排,不能影响门窗的滑动,这些都是很细枝末节的问题。好在他们会主动来找我。”
重头戏是机械设备的安装。由于工期紧张,设备进场的时候,土建还没有完成。张钦松记得当时地面仍在施工,他们和地面面层班组交叉作业,灰尘满天飞。门本身要垂直,旋转时要保持水平,对安装的精度有较高要求。此外,佳合特意交代,为了保证门可以顺畅地旋转,地面要比设备低一点,还在门上预留了升降调节的功能,必要时可以抬高。
*
旧吊车轨道是过去空间中机械轰鸣所撼动的记忆,新嫁接的机械设备则为其注入了当下的脉动。新旧轨迹的交融,宛若两个时代的对话,共筑新的场所记忆
* 向左滑动查看更多
多功能悬桥营造出穿行于工业遗迹的独特空间体验。周边商品展示架悬挂在上方桥结构,形成前台区域
2024年年底,项目竣工,杭氧旧址有了新名字——杭州武林之星博览中心。走进三号厂房,第一眼仍然会被建筑自身的气场震撼,巨大的尺度天然带有崇高的美学特征。近三层楼高的旋转门强化了原有的尺度感,人站在门前,会觉得自己很渺小。十四道门一字排开,声势浩大。老厂房的高阔粗粝与新机械系统的精细缜密,闪亮的新管线与锈蚀的老行车锚固各自的时代印迹。时隔65年,建筑师延续工业建筑的运行法则,在老厂房内装配全新的机械设备,满足建筑下一阶段的使用功能,为将来的再次改造留有充分的余地。建筑的生命不再因为功能的变化走向终点,可以不断进入新的周期。
*
三号厂房内旋转门巨大的尺度天然带有崇高的美学特征
* 向左滑动查看更多
三、四和五号厂房被改造成不同的功能空间
在众多工业遗产改造项目当中,武林之星并不算规模宏大,备受瞩目,但是它却展现了一种相对理想的状态,或者说一种愿景。当参与项目的各方都对建筑的品质有要求,对未来有期许的时候,建筑师终于不再孤军奋战。
自从竣工以来,武林之星累计举办活动超过两百场。2024年11月7日,三号厂房被划分成三个独立的空间,分别呈现“慕夏·无尽之梦”、“万物友爱”和“LPA梦想车库”三个展览。2025年六月,整个三号厂房被迪赛尼斯租下作为秀场,旋转门跟随模特的步伐而动。厂房内部空间可分可合,通过新设备按需调整,设计概念在实际使用中被最终验证。
*
竣工之后的武林之星博览中心内部空间,会随使用功能调整结构设备、旋转门等
方案及初步设计 : Atelier lIlI (栗栗建筑) + 浙江经纬工程设计有限公司
设计团队:栗若昕(主创建筑师)、黎裕莹(助理建筑师)、潘明(项目负责人/主创设计师) 、王凯(建筑专业) 、张彬(室内专业)、 王鸾晴(室内专业)、刘书江(结构专业)
施工图设计 : 浙江省城乡规划设计研究院
设计团队:李锦霞(项目经理/设计负责人)、陆文哲(项目设计负责人/结构专业负责人)、许路延(结构设计)、朱黎炜(装修专业负责人及校对)、刘辉(装修专业校对)、陈泽宁(装修专业负责人)、程超男(装修专业设计人)、姜迎春(给排水)、徐振(暖通)、胡奇锋(电气)、吕钦荣(智能化)
机械设备深化设计及制作 : 浙江佳合未来文化科技股份有限公司
设计团队:张钦松(项目总负责)、侯昌青(项目技术负责人)、董威(项目设计负责人)、倪洪华(项目结构负责人)、吕杨(机械深化设计)、李寅威(现场技术助理)、盛慧芳(电气设计负责人)、赵飞(项目施工负责人)、涂磊(项目经理)、倪乐村(技术顾问)
业主: 杭州旅游投资发展有限公司
项目负责人:唐岷雪
设计管理:孙韶华
施工单位: 浙江众安建设集团
摄影: 刘国威,姜柳卿,Atelier IlIl
视频: 刘国威
撰文、采访:李里
编辑:zhuoran
编排:薛韬
























